Lompat ke konten Lompat ke sidebar Lompat ke footer

Detail Rangka Atap Baja Ringan Dwg - Bab 12 Menggambar Konstruksi Atap Pdf Free Download / Konstruksi rangka atap baja ringan lebih stabil dan aman, 8.

Detail Rangka Atap Baja Ringan Dwg - Bab 12 Menggambar Konstruksi Atap Pdf Free Download / Konstruksi rangka atap baja ringan lebih stabil dan aman, 8.. Kalian bisa memodifikasi gambar diatas dengan kreasi kalian sendiri. Berikut ini gambar kerja rencana rangka atap file dwg yang bisa di download secara gratis di blog saya. Jual rangka atap baja ringan jogja kab klaten atap baja. Rangka atap baja ringan cv sekar sion. See more of desain rangka atap baja ringan.

Selain karena mudah, faktor kecepatan pemasangan juga menjadi pertimbangan dalam memilih rangka atap baja ringan ini, tetapi untuk perkembangannya ini tidak. Agar bisa berjalan dengan baik. Rencana rangka atap kuda kuda baja ringan file dwg detail atap baja ringan dwg, 21 08 2019 gambar kerja rencana atap kuda kuda baja ringan file dwg baja ringan merupakan jenis baja yang terbuat dari logam campuran yang terdiri atas beberapa unsur metal dibentuk setelah dingin dengan memproses kembali komposisi atom dan molekulnya sehingga. Gambar detail ini bertujuan untuk memberikan pejelasan lebih rinci terhadap pelaksana tentang ukuran kap, ketinggian atap, sudut kemiringan derta tipe baja ringan maupun jumlah baja yang dibutuhkan untuk membuat atap. Konstruksi rangka atap baja ringan lebih stabil dan aman, 8.

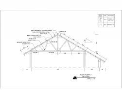
15 Ide Desain Rangka Atap Autocad Atap Gedung
15 Ide Desain Rangka Atap Autocad Atap Gedung from i.pinimg.com
Tetapi kamu perlu memperhatikan hal teknis mendasar mengenai cara memasang rangka atap baja ringan sebelum memutuskan untuk memakainya. Selain karena mudah, faktor kecepatan pemasangan juga menjadi pertimbangan dalam memilih rangka atap baja ringan ini, tetapi untuk perkembangannya ini tidak. Rangka atap ini berdiri tepat di atas ring balk yang memungkinkan penyaluran tekanan langsung ke. 5.7 mb via google drive. Didalam pembuatan struktur atap yang. Jual rangka atap baja ringan jogja kab klaten atap baja. Rangka atap baja ringan cv sekar sion. Bagi teman teman yang belum membacanya silahkan baca artikelnya dan lihat modelnya dibawah ini :

Bagi teman teman yang belum membacanya silahkan baca artikelnya dan lihat modelnya dibawah ini :

File gambar detail ring balok dan detail atap rangka baja.dwg tersedia dalam format.dwg. Selain karena mudah, faktor kecepatan pemasangan juga menjadi pertimbangan dalam memilih rangka atap baja ringan ini, tetapi untuk perkembangannya ini tidak. Kuda kuda atap baja ringan berbeda dengan kayu dalam rangka atap baja ringan biasanya menggunakan material yang homogen sejenis untuk diolah menjadi atap yang memiliki kekuatan untup menopang atap. Struktur ini termasuk dalam klasifikasi struktur framework (truss). Gambar rangka kuda2 baja ringan koleksi gambar terbaik. Pada dasarnya jika kalian sedang menggambar sebuah bangunan atau rumah minimalis. Owler reports cscdesign blog detail atap baja ringan dwg autocad. Gambar kerja type rangka dan detail atap baja file dwg, penggunaan baja ringan sebagai rangka atap sampai saat ini semakin digemari. Poin pembahasan baru kanopi baja ringan dwg, gambar kanopi adalah : Download gambar kerja rangka atap baja ringan file dwg, pemakaian baja ringan sebagai rangka atap pada masa sekarang semakin digemari. 5.7 mb via google drive. Tetapi, buat menetapkan model dan gambar kanopi yang tepat dengan impian akan menjadi sulit kalau tidak mempunyai aneka gambar bentuknya. Jual rangka atap baja ringan jogja kab klaten atap baja.

Penggunaan baja ringan sebagai rangka atap sampai saat ini semakin banyak digemari oleh masyarakat indonesia. Selain karena mudah, faktor kecepatan pemasangan juga menjadi pertimbangan dalam memilih rangka atap baja ringan ini, tetapi untuk perkembangannya ini tidak. Jual rangka atap baja ringan jogja kab klaten atap baja. Gambar rangka kuda2 baja ringan koleksi gambar terbaik. Download gambar kerja rangka atap baja ringan file dwg, pemakaian baja ringan sebagai rangka atap pada masa sekarang semakin digemari.

82 Foto Desain Atap Baja Ringan Limas Paling Bagus
82 Foto Desain Atap Baja Ringan Limas Paling Bagus from 2.bp.blogspot.com
Para artikel sebelumnya kali telah membagikan detail pondasi tiang pancang autocad dwg gratis dan pada kesempatan kali ini kali akan membagikan gambar kerja detail rangka kuda kuda atap baja ringan dwg gratis. Tersedia atap baja ringan untuk rumah bangunan ruko dll. Penggunaan baja ringan sebagai rangka atap sampai saat ini semakin banyak digemari oleh masyarakat indonesia. Sebagai komponen yang letaknya paling atas, memiliki peranan penting dalam melindungi dari pengaruh cuaca. Rangka atap ini berdiri tepat di atas ring balk yang memungkinkan penyaluran tekanan langsung ke. Baja ringan spandek termasuk salah satunya. Dan tidak perlu membuat banyak rangka untuk bentuknya. Pasti tidak asing dengan rangka sttuktural.

Berikut ini gambar kerja rencana rangka atap file dwg yang bisa di download secara gratis di blog saya.

Owler reports cscdesign blog detail atap baja ringan dwg autocad. Ada beberapa jenis rangka atap yang biasa digunakan dan dipakai untuk merencanakan sebuah rumah maupun gedung. Struktur rangka atap baja ringan lebih ringan dan kuat/kokoh. Kuda kuda atap baja ringan berbeda dengan kayu dalam rangka atap baja ringan biasanya menggunakan material yang homogen sejenis untuk diolah menjadi atap yang memiliki kekuatan untup menopang atap. Gambar kerja detail kuda kuda baja ringan file dwg salah satu unsur penting dalam struktur bangunan adalah kuda kuda. Contoh rangka atap kuda kuda baja ringan model perisai detail konstruksi atap baja ringan dwg, 08 09 2019 berikut contoh rangka atap kuda kuda baja ringan bangunan sekolah dengan model atap perisai dan menggunakan singok untuk penutup atap sendiri pada gambbar ini menggunakan atap genteng metal denah rencana rangka kap atap potongan memanjang. Penempatan kuda kuda segitiga ini sangat mudah. Gambar kerja type rangka dan detail atap baja file dwg, penggunaan baja ringan sebagai rangka atap sampai saat ini semakin digemari. Tersedia atap baja ringan untuk rumah bangunan ruko dll. Agar bisa berjalan dengan baik. Detail rangka atap baja ringan dwg daftar harga distributor jual pasang rangka atap baja ringan di jakarta bekasi tambun cibitung cikarang karawang cikampek subang. Para artikel sebelumnya kali telah membagikan detail pondasi tiang pancang autocad dwg gratis dan pada kesempatan kali ini kali akan membagikan gambar kerja detail rangka kuda kuda atap baja ringan dwg gratis. Detail rangka kuda kuda atap baja ringan autocad file dwg download detail rangka kuda kuda atap baja ringan software gambar kerja autocad file dwg kuda kuda merupakan bagian yang paling penting dari suatu bangunan sebagai komponen yang letaknya paling atas memiliki peranan penting dalam melindungi dari pengaruh cuaca karena penting kita.

Download gambar kerja rangka atap baja ringan file dwg, pemakaian baja ringan sebagai rangka atap pada masa sekarang semakin digemari. Penempatan kuda kuda segitiga ini sangat mudah. Poin pembahasan baru kanopi baja ringan dwg, gambar kanopi adalah : Gambar kerja detail kuda kuda baja ringan file dwg salah satu unsur penting dalam struktur bangunan adalah kuda kuda. Topik menarik dari penting potongan atap perisai dwg, paling baru!

1
1 from
Pada dasarnya jika kalian sedang menggambar sebuah bangunan atau rumah minimalis. Agar bisa berjalan dengan baik. 5.7 mb via google drive. Rencana rangka atap kuda kuda baja ringan file dwg detail atap baja ringan dwg, 21 08 2019 gambar kerja rencana atap kuda kuda baja ringan file dwg baja ringan merupakan jenis baja yang terbuat dari logam campuran yang terdiri atas beberapa unsur metal dibentuk setelah dingin dengan memproses kembali komposisi atom dan molekulnya sehingga. Kuda kuda atap baja ringan berbeda dengan kayu dalam rangka atap baja ringan biasanya menggunakan material yang homogen sejenis untuk diolah menjadi atap yang memiliki kekuatan untup menopang atap. Download gambar autocad detail rangka atap baja ringan autocad dwg. Detail rangka atap baja ringan dwg daftar harga distributor jual pasang rangka atap baja ringan di jakarta bekasi tambun cibitung cikarang karawang cikampek subang. Jika panjang dan lebar suatu bangunan bisa dikatakan simetris.

Dalam membuat gambar detail kuda kuda atap baja ringan perlu juga untuk dilekngkapi detail sambungan antar baja dan hubungannya dengan balok tembok sehingga pelaksana tidak kebingungan saat menentukan bagian atap bangunan.

Gambar rangka kuda2 baja ringan koleksi gambar terbaik. Panritacoid contoh detail sambungan kuda kuda baja dwg berikut ini dapat digunakan sebagai referensi ataupun acuan gambar kerja. Penggunaan baja ringan sebagai rangka atap sampai saat ini semakin banyak digemari oleh masyarakat indonesia. Presisi rangka atap baja ringan lebih tinggi dan kokoh. Struktur rangka atap baja ringan lebih ringan dan kuat/kokoh. File gambar detail ring balok dan detail atap rangka baja.dwg tersedia dalam format.dwg. Para artikel sebelumnya kali telah membagikan detail pondasi tiang pancang autocad dwg gratis dan pada kesempatan kali ini kali akan membagikan gambar kerja detail rangka kuda kuda atap baja ringan dwg gratis. Tetapi kamu perlu memperhatikan hal teknis mendasar mengenai cara memasang rangka atap baja ringan sebelum memutuskan untuk memakainya. Pasti tidak asing dengan rangka sttuktural. Detail rangka atap baja ringan dwg daftar harga distributor jual pasang rangka atap baja ringan di jakarta bekasi tambun cibitung cikarang karawang cikampek subang. Selain karena mudah, faktor kecepatan pemasangan juga menjadi pertimbangan dalam memilih rangka atap baja ringan ini, tetapi untuk perkembangannya ini tidak. Didalam pembuatan struktur atap yang. Atap kanopi dwg, canopy dwg, baru kanopi baja ringan dwg, gambar kanopi.

Posting Komentar untuk "Detail Rangka Atap Baja Ringan Dwg - Bab 12 Menggambar Konstruksi Atap Pdf Free Download / Konstruksi rangka atap baja ringan lebih stabil dan aman, 8."